suncitygroup太阳集团,

ZEBプランナーと地元事業者が協働 アミスタ五所川原(前編)

 青森市の中心部から西へおよそ20km。日本海側に開けた津軽平野の一画に、社会福祉法人拓心会が運営する住宅型有料老人ホーム「アミスタ五所川原」が建つ。延べ面積1859m2の平屋建て木造建物は、ZEB(ネット・ゼロ・エネルギー・ビル)シリーズの「ZEB Ready」に該当する。

 

 同じ東北地方でも、BELS(建築物省エネルギー性能表示制度)のZEB登録の実績は県によって大きく異なる。2019年10月末時点、東北6県で「ZEB」「Nearly ZEB」「ZEB Ready」の登録事例は21件あるが、太平洋に面した南東部の宮城県、福島県がその4分の3に当たる16件を占める。東北の最北に位置し、多雪地域を多く含む青森県の登録事例は3件だ。このうちの1つとなるアミスタ五所川原は、県内でも最先端の事例の1つといえる。

 

 拓心会は、五所川原市および隣接するつがる市に合わせて3つの拠点を設け、高齢者や障害者を対象とする福祉事業を展開している。アミスタ五所川原は、住宅型有料老人ホームや訪問介護ステーションなどの既存施設が並ぶ敷地内に、19年1月に完成した。30人が入居する老人ホームの他、デイサービス施設や法人の本部機能などを併設している。

 


アミスタ五所川原の入り口回り(写真:拓心会)


デイサービス室(写真:拓心会)

 

 「これまで既存の施設では、太陽光発電システムや木質ペレットボイラーなど再生可能エネルギーを導入してきた。施設を建てる際には環境にも配慮しているが、ZEBについては今回初めて知った」。拓心会理事長の島村美由紀氏はそう振り返る。

 

 ZEB化の計画は、ペレットの納入事業者からZEB補助金の話を耳にしたことから始まった。その事業者からの紹介で18年2月、ZEBプランナーに登録している成長戦略(東京都千代田区)のパートナーの藤田哲次氏と初めて打ち合わせした。

 

 ここで藤田氏は、ZEB補助金の大枠について説明。「前年度補助事業の公募要領を基に、申請にまつわるスケジュールや必要な資料は何かを話した」(藤田氏)。ZEB化に伴い建設工事費は高くなるが、補助金によってその一定分を賄えること、運営過程で光熱費の削減効果があることも伝えた。

 

 拓心会はZEBによるランニングコストの低減や室内環境の向上を評価した。そして、延べ面積が2000m2未満の建物を対象とする環境省の「ZEB実現に向けた先進的省エネルギー建築物実証事業」への申請を決めた。

 

 設計と施工は五所川原市内の会社が担当した。設計は、建築を秀建築設計事務所、設備を神建築設備設計事務所がそれぞれ担当。施工は川村建匠が担った。成長戦略は、これら地元の設計者、施工者と随時やり取りをしながら申請の手続きを進めた。

 

 補助金の申請に伴い、計画内容や工程には一定の制約が生じる。例えば、建物の省エネルギー性能は建築研究所のWEBプログラムを用いて算定することが条件となるが、拓心会が既存施設で用いてきた木質ペレットボイラーは、建築研究所のWEBプログラムの入力対象から外れてしまう。そこで藤田氏は建築研究所に相談したうえで、給湯で業務用ヒートポンプ給湯機とペレットだき温水器を併用。WEBプログラム計算にはヒートポンプ給湯機だけ組み入れることで対応した。

 

 敷地内の既存施設の太陽光発電を利用するという前提で、太陽光発電システムは新たに設置していない。そのため1次エネルギー消費量の削減率は、創エネを含む場合も含まない場合も55%となっている。

 

トップライトで自然採光

 

 「計画では、『1次エネルギー消費量の削減率50%以上』という補助要件を満たすことが目標となった。まず設計内容がこの基準をクリアするかどうかをチェックした。開業時期が決まっていたので工程は厳しかったが、建築も設備も当初から省エネルギーに配慮していた設計だったため大きな変更は無かった」と藤田氏は話す。

 

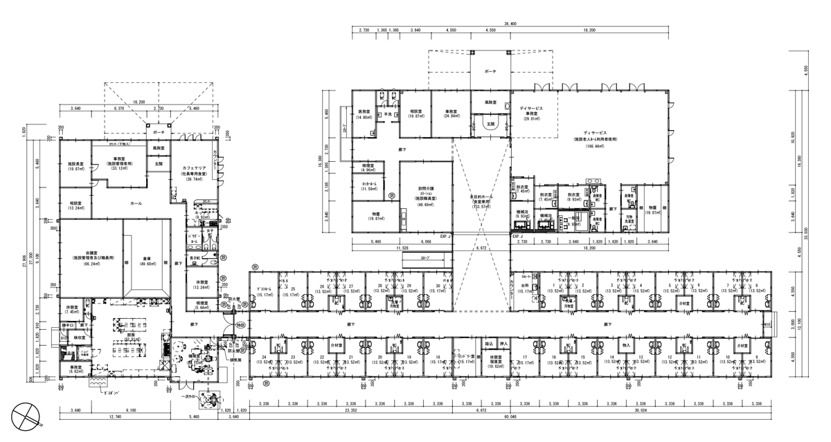
 建物は、建設地の形状に合わせて南北に長く配置している。南北に延びる中廊下の両側に入居者の個室が30室並ぶ。デイサービスエリアや訪問介護ステーション、事務室などが入る棟と、厨房や倉庫、職員用のカフェテリアなどが入る棟がその西側と南側にそれぞれ接続する。中廊下にはトップライトを設け、昼間には自然採光で一定の明るさを確保するようにした。

 


アミスタ五所川原の平面図(資料:秀建築設計事務所)


個室(写真:拓心会)

 

 外皮の断熱は、主な外壁部分では厚さ75mmのウレタンフォーム、天井面では厚さ200mmのグラスウールを吹き込んだ。足元回りでは、基礎立ち上がり部分に厚さ50mm、床に厚さ25mmの押し出し法ポリスチレンフォームをそれぞれ施工した。

 

 「木造建築の場合、例えば外壁には厚さ100mm程度のグラスウールを施すのが一般的だが、今回はZEBを目指すためにより高い断熱性を見込める仕様とした」と、秀建築設計事務所代表取締役の三上秀昭氏は話す。一方、開口部に用いたLow-E複層ガラスの樹脂サッシは、近隣エリアでは通常の仕様だという。

 

 設備面では汎用的な技術を組み合わせつつ、一部で性能を強化した。熱交換型換気システムを採用した他、給水管の断熱仕様を厚さ20mmから30mmに増やしたり、蛇口の水栓を節水タイプにするなどした。

 

 事務室や多目的ホールなどの大空間、昼間の滞在時間が長い部屋の暖冷房には、補助対象となる複数制御の寒冷地仕様のパッケージエアコンを採用した。入居者の個室などには寒冷地仕様のルームエアコンを設置している。

 

 19年1月に入居を開始。それから半年ほどたった19年夏には、敷地内の既存施設の太陽光発電システムで発電した余剰電力をアミスタ五所川原で利用できるようにした。導入したBEMSを用いて月ごとのエネルギー消費量のデータを蓄積し、今後の運用改善につなげていく。

 

 拓心会は、ZEB化に伴ってイニシャルコストは20〜30%高くなったと見積もる。その一方で、ランニングコストは着実に低減している。島村理事長は、「まだ厳密な検証はしていないが、月ごとの電気代は同じ規模の施設に比べて7~8割ほど減っている。太陽光発電をつなげた効果もあるだろうが、省エネ化を実感している」とZEB化の手応えを語る。

 


個室エリアの夕景外観(写真:川村建匠)

 

アミスタ五所川原の建築概要データ

●所在地:青森県五所川原市
●地域区分:3地域
●建物用途:病院等
●構造・階数:木造・地上1階建て
●延べ面積:1859m2
●発注者:拓心会
●設計者:秀建築設計事務所(建築)、神建築設備設計事務所(設備)
●施工者:川村建匠
●完成:2019年1月

 

(日経 xTECH「省エネNext」公開のウェブ記事から抜粋)

 


これからの時代は企業として省エネ、創エネ、畜エネへの取り組みが求められます。グローバルのトップ企業トリナ・ソーラーの高品質で高パフォーマンスの製品の中から最適なパネルをお選びください。

     

    関連コンテンツ

ブログTOPはこちら 製品一覧はこちら
お問い合わせフォーム

関連する記事

suncitygroup太阳集团